Situación:
Tenerife
Autora:
Marta Rodríguez Cuenda
Tutora:
Yolanda Cañas Palacios
Departamento:
Proyectos. Escuela de Arte y Superior de Diseño Fernando Estévez.
Fecha de aprobación:
Junio 2018
Valoración de la Accesibilidad Universal:
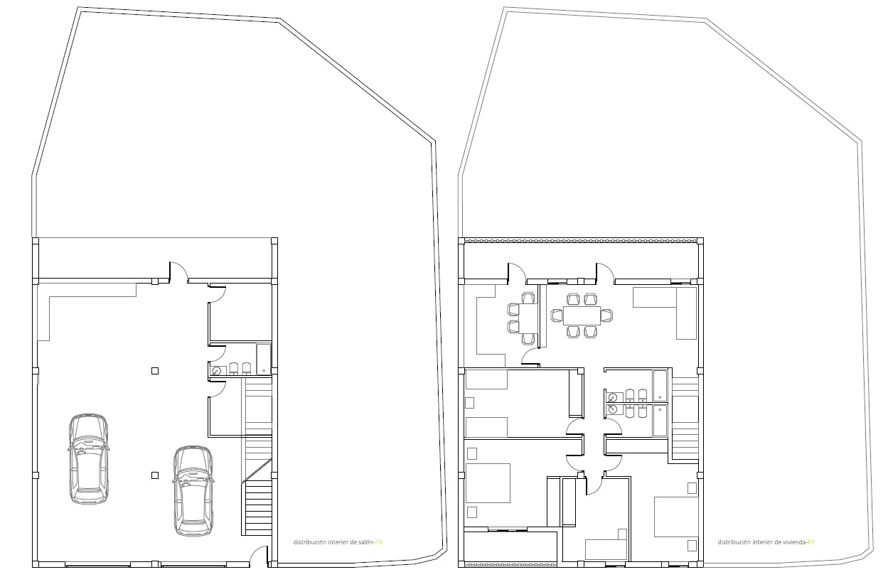
El proyecto parte del concepto de: Reinventarse frente a las adversidades, adaptarse a un nuevo estilo de vida, a las nuevas funcionalidades, a los nuevos usos y costumbres, a construir y habitar para la diversidad.
Partiendo de uno de los modelos de vivienda unifamiliar existente en la isla de Tenerife, unido a las tradiciones y usos de sus habitantes, se realiza una propuesta de funcionalidad del edificio a medio largo plazo, donde garantizar la accesibilidad a todas las personas es el hilo conductor del proyecto.


